Appartamento completamente ristrutturato

In vendita
Vieste
200.000 €
Appartamento
Categoria
74
m2
3
Locali
2
Camere
1
Bagni
Descrizione
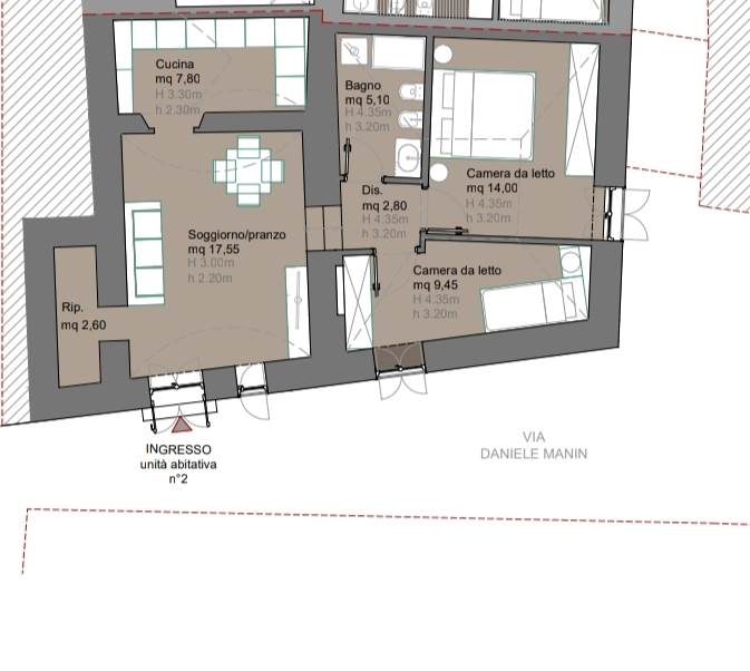
beho real estate vende questo appartamento con ingresso indipendente in via Manin, a pochi passi dal centro e dalla suggestiva piazza di Marina Piccola. L'immobile è composto da due camere da letto, cucina, soggiorno e bagno. L'appartamento sarà venduto completamente ristrutturato, sia internamente che esternamente. Se acquistato prima della conclusione dei lavori sarà possibile effettuare delle modifiche al progetto e personalizzare ulteriormente l'immobile in base alle proprie esigenze. Contatta l'agenzia per maggiori informazioni e per prenotare la tua visita.
Caratteristiche principali
Codice:
V000058
Città:
Vieste
Categoria:
Appartamento
Locali:
3
Camere:
2
Bagni:
1
Mq:
74
Piano:
1
Classe energetica:
A
Stato Immobile:
Nuovo
Grado:
Medio
Posizione:
Centro Storico
Riscaldamento:
Autonomo
Tipo Riscaldam.:
Pompa di Calore
Accessori
Aria Condizionata
Doppi Vetri
Distanze
Posizione
Centro100 m
Mare100 m
Parco pubblico100 m
Cookie preference