Appartamento completamente ristrutturato

In vendita
Vieste
200.000 €
Appartamento
Categoria
78
m2
3
Locali
2
Camere
1
Bagni
Descrizione
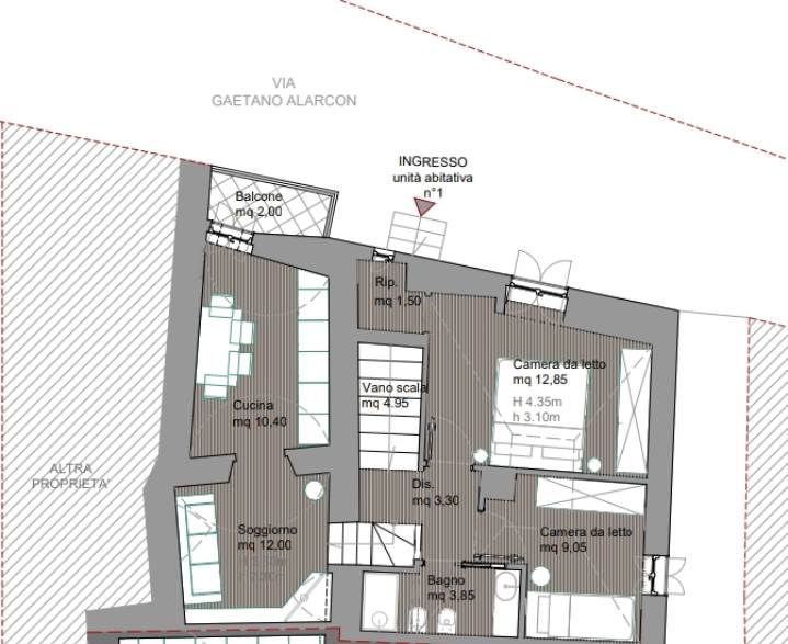
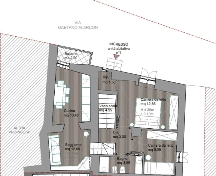
beho real estate vende questo appartamento con ingresso indipendente in via Alarcon, nella parte bassa del centro storico, a pochi passi dal centro e dalla Marina piccola. L'immobile sarà venduto dopo una ristrutturazione completa degli interni, degli impianti e delle facciate esterne, se acquistato prima della conclusione dei lavori, sarà possibile effettuare dei cambiamenti al progetto che attualmente prevede due camere da letto, cucina, soggiorno e bagno. Grazie a questa possibilità, hai l'opportunità di personalizzare gli spazi secondo le tue esigenze. Non perdere l'opportunità di vivere in un luogo dove ogni dettaglio è pensato per il tuo comfort.
Contatta l'agenzia per maggiori informazioni.
Caratteristiche principali
Codice:
V000057
Città:
Vieste
Categoria:
Appartamento
Locali:
3
Camere:
2
Bagni:
1
Mq:
78
Balconi:
1
Piano:
1
Anno ristrutturazione:
2025
Classe energetica:
A
Stato Immobile:
Nuovo
Grado:
Medio
Posizione:
Centro Storico
Riscaldamento:
Autonomo
Tipo Riscaldam.:
Pompa di Calore
Fonte Energetica:
Elettrico
Accessori
Aria Condizionata
Doppi Vetri
Distanze
Posizione
Centro100 m
Mare100 m
Parco pubblico100 m
Cookie preference